
Daniel Chabroux ©

PRA ©

PRA ©

PRA ©
15 Logements à Pierrefitte
2023 L03
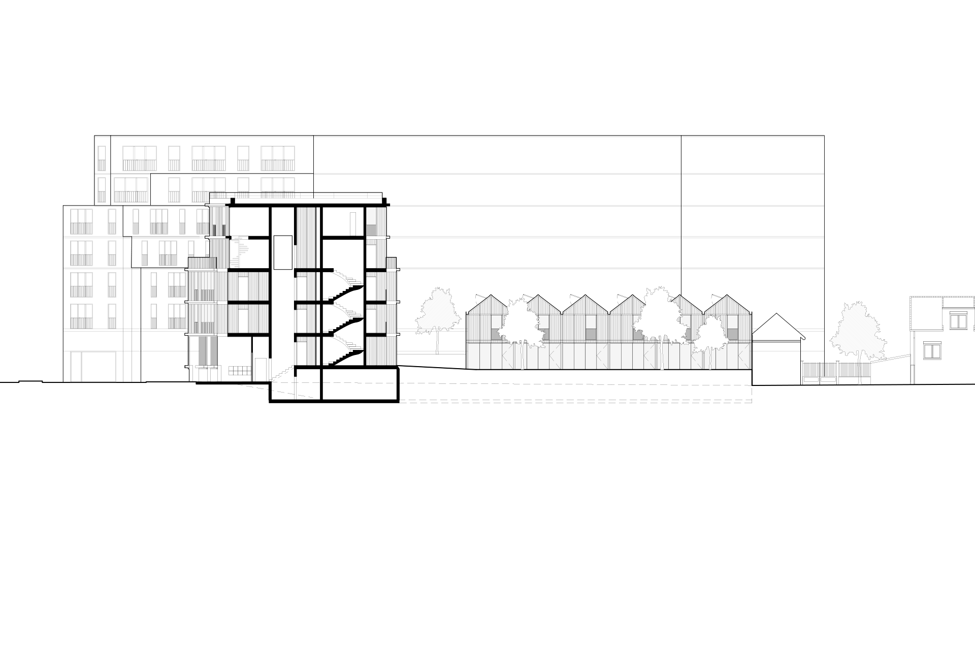
Le site du projet se trouve à la limite ouest de la commune de Pierrefitte-sur-Seine et de Saint-Denis. Compte tenu du programme et des ambitions environnementales développées dans le programme pour la construction des 15 logements PLS, nous avons cherché à relier l’ensemble des bâtiments au site et de limiter autant que possible l’impact les parkings de l’opération sur la rue existante tout en optimisant au maximum le fonctionnement grâce la création d’un soubassement semi-enterré non prévu initialement qui nous permet de régler le projet dans le contexte.
Rationaliser la construction c’est avant tout calculer, évaluer, réduire, simplifier pour économiser à la fois la matière et la main-d’œuvre nécessaire à la construction du bâtiment. Cette démarche frugale d’économie de moyen induit naturellement une réduction des risques de fragilité et facilite la maintenance du bâtiment, son entretien ou sa transformation. Les économies ainsi réalisées sur les quantités nous permettent alors de choisir des matériaux pérennes et performants et de proposer des solutions tout aussi qualitatives pour le traitement des aménagements extérieurs que nous avons conçus avec une attention particulière au paysage et à l’écologie et conçus avec notre équipe d’architectes et d’ingénieurs et le soutien d’entreprise de préfabrication qui nous ont permis de vérifier et chiffrer nos premières hypothèses.
Pour cette construction, les choix ont donc été rationalisés pour limiter les complexités formelles et techniques. Tous les dimensionnements ont été définis en fonction des dimensions standards des matériaux afin de limiter la production de déchets pour la construction, les éléments de maçonnerie et de charpente en bois comme les menuiseries vitrées et les objets de serrurerie respectent strictement les standards de l’industrie.
Plus qu’un projet fini et sans capacité d’évolution, c’est aussi un système ouvert et évolutif qui est proposé. La conception du projet architectural et technique est basée sur un principe de modularité qui permet de faire évoluer le bâtiment en cours de conception, mais aussi de le transformer ou de le démonter si nécessaire. Il est aussi nécessaire de prioriser les thèmes dans leur globalité ainsi que les objectifs du plan 3F Climat pour les adapter à l’opération et sa spécificité comme notamment l’approche sur la construction bas carbone et le hors-site. De la même manière, la consommation énergétique de l’opération et des potentialités du site qui offrent de nombreuses orientations permettront d’offrir une grande qualité d’usage et de confort en veillant à ce que l’équilibre entre investissement nécessaire et économie d’énergie comme financière soit recherché et objectivé grâce à des études comme des simulations thermiques dynamiques.
d’œuvre
d’ouvrage

