
Naska ©

Naska ©

Naska ©

PRA ©

PRA ©

PRA ©

PRA ©

PRA ©

PRA ©
Centre de Production Horticole Municipal
2023 E22
Le projet du futur Centre horticole de production municipal (CPHM) s’inscrit dans celui de la ZAC Parc Méridia, en rive gauche de la vaste Plaine alluviale du Var, encadrée par les collines de l’arrière-pays niçois. Zone humide littorale principale de la Côte d’Azur, cette basse vallée rassemble, malgré un contexte très marqué par les aménagements humains, une grande variété de milieux naturels (gravières, roselières, ripisylves, eaux vives, etc.) peu présents dans le reste du département. Le projet est élaboré autour du concept écologique d’écotone qui définit une zone de transition entre deux écosystèmes, deux paysages différents (par exemple, le passage d’une plaine alluviale à une zone non inondable, d’une forêt à une rase campagne, etc.) et où les conditions d’environnement sont intermédiaires et la richesse écologique et les échanges élevés. De même qu’une lisière entre deux milieux, l’écotone n’est ni l’un ou l’autre mais il se nourrit de l’un et de l’autre à la fois et y contribue en retour.
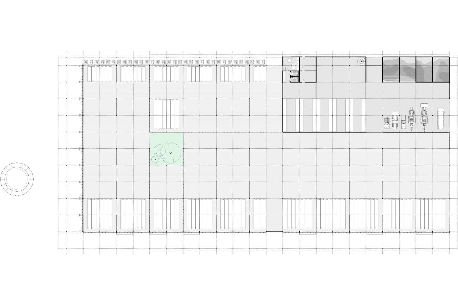
Il s’agit de prolonger et décliner ce concept écologique et paysager pour en faire un concept également matériel et pédagogique et de proposer la construction d’un écotone artificiel entre la ville et le paysage, les bâtiments et le parc, les serres et les plantes, l’horticulture et l’éducation, le climat et l’environnement. Le centre horticole est avant tout conçu par ses franges, non seulement en vertu de ses qualités techniques, fonctionnelles ou esthétiques, mais aussi en ce qu’il fonctionne comme autant de rappels des écosystèmes locaux et est ainsi propice à la mission d’intérêt public de mise en valeur des différents savoirs et savoir-faire des jardiniers et, plus largement, de sensibilisation aux questions environnementales que ce lieu de production souhaite porter. Le dialogue avec le contexte existant renvoie à des motifs éco-paysagers courants dans la nature et à leur écotone – ou effet de lisière – associé.
Chaque façade entretient en effet une relation singulière à son environnement. A l’est, côté parc, les serres forment une interpénétration progressive entre l’architecture et le paysage avec une projection physique et symbolique des serres vers le parc. A l’ouest, le bâtiment devient le seuil entre les serres et la ville, une placette signale les serres et leurs activités dans le tissu urbain. Au sud, côté parvis, le projet invite à la découverte et offre un support d’échange pédagogique au public à travers l’observation des activités des serres et du fonctionnement du kiosque de l’eau qui capte l’humidité. Enfin, au nord, l’écotone se traduit par un jeu de miroir entre le passé maraîcher et horticole du site et la réserve extérieure destinée à la production non accessible au public, entre le travail manuel de la production dans une serre et dans un parc paysager.
d’œuvre
d’ouvrage

